
华强城七期4-701案例设计说明!
主创设计 Designer:靳彦鸿
项目管理 Project management:黄从明、孟青亮
参与者 Participant:贾殷,任园,李科娟,赵金莹
空间性质 Spatial properties:住宅空间
项目地址 Location:安阳市小区
主要材料 Main materials:通体大理石,强化地板,壁布
主要家具 Main furniture:品牌莫多,风格现代,材质布艺,色彩莫兰迪等(品牌,风格,材质,色彩等)
项目面积 Area:138㎡
文稿及排版 Manuscripts and typesetting:靳彦鸿、王红强
原始平面图:

入户风水进行了整体调整,主卧室冲门,卫生间沐浴区小,主卫马桶位置不合适
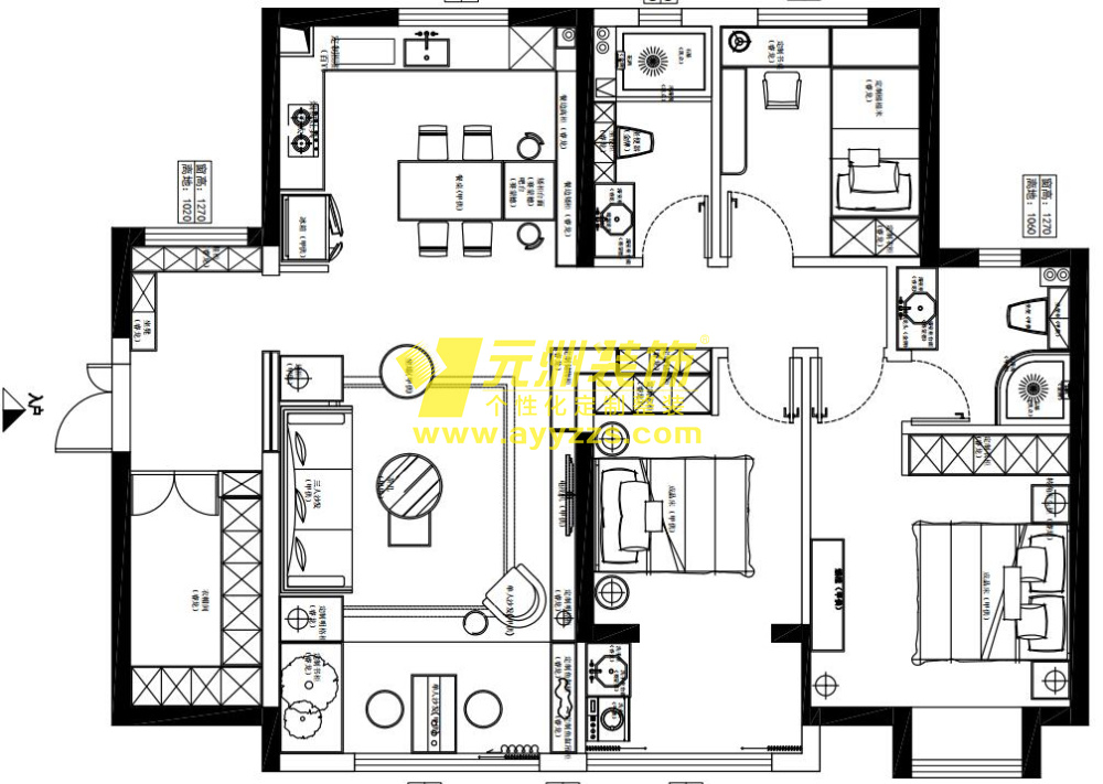
平面布置图:

经过了和业主的沟通,进行了整体改造,改造后业主使用舒适度提升
设计说明:



这套方案是为年轻人设计的,以咖啡色和米色色调主色调,保证宽敞的整体感觉,同时不忘空间的舒适度,简约的极简主义风格,可以为业主带来明亮和放松的体验。





案例总结:整体采用灰色+咖啡色色调,使空间整体变得温暖、柔和。为了增加客厅宽敞的视觉效果,将原客厅阳台空间变成了客厅空间,使空间感更强
ABOUT US
安阳元洲装饰公司
安阳元洲装饰公司是一家专业从事高端住宅、洋房别墅、房产样板间的室内设计、装饰施工以及整体配饰陈设为一体的设计公司。以专业的设计水平,独特的个人品味,诚恳的工作态度服务于追求高品质生活空间的客户群体。团队提供室内硬装设计、软装家具饰品整体设计等服务。选择品承,将艺术融入到生活 ,体验不一样的私宅定制。
详细准确的基础报价:
附件
详细准确的主材报价:
附件
本套案例总报价:万
包设计|包施工|包主辅材|包售后
预约参观该工地
►预约设计师/参观样板房☟
安阳装饰、安阳装修、安阳家装、家庭装修、安阳别墅复式装饰设计行业领跑者